有田市立そとはま保育所 大屋根が包む子供達の居場所

和歌山県有田市に位置する二つの保育所が統合するに伴い、
市が主催となり新保育所設計のプロポーザルが実施された。

本敷地は旧東亜燃料社宅ゾーンに位置し、
生活の気配の消えた社宅棟、公園、グラウンド、錆色の石油タンクが残されている。
このような周辺環境をふまえた上で、
いかにして感受性豊かな子どもの成長の場を作り出すかが一つのポイントであった。

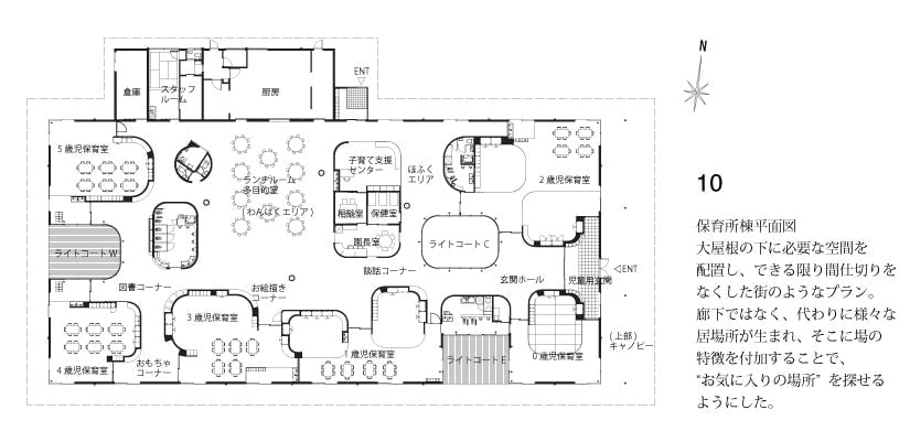
近年ニーズの高まる乳児保育や、保育所内に新たに併設される地域子育てセンターを取り入れた本計画。
0〜5歳の園児、保護者、保育士、そしてセンターに訪れる子どもとその保護者たちが
いかにして大切な子育て期を過ごすのか。
地域の中の保育所として子育てを新しいテーマで提案したいと考え生まれた建築である。



 







弊社が設計監理致しました「有田市立そとはま保育所」が、 
『第7回キッズデザイン賞』にて
「子どもの産み育て支援デザイン 地域・社会部門 優秀賞」
「少子化担当大臣賞」を受賞致しました。

建築的な評価に加え、地域子育て支援センター併設による効果や、
保育士を目指す高校生を巻き込んだイベントの開催など、
地域の子育て活動の拠点として高く評価して頂きました。
有田市の課題であった子育てに関するまちづくりに関与することができたこと、
そしてそれが名誉ある賞でご評価を頂けたことに感謝です。

本当にありがとうございました。

2013年7月29日には六本木ヒルズ内アカデミーヒルズ49にて
他の受賞者の方々と共に表彰式に出席させて頂き、
審査員のみなさまより直接ご講評の言葉を頂戴しました。

有田市の方々、
工事に関わって下さった全ての方々、
そして保育所を大切に使ってくれている園児のみんな、保護者の皆様、
保育士の皆様のおかげでこのような名誉な賞を受賞することが出来ました。
心よりお礼申し上げます。

----------------------------------------------------------------------------------------------------------------------
(以下第7回キッズデザイン賞official HPより抜粋)
キッズデザイン賞とは…
子どもたちの安全・安心に貢献するデザイン、創造性と未来を拓くデザイン、
そして、子どもたちを産み育てやすいデザインの顕彰制度です。

LinkIcon 第7回キッズデザイン賞/KIDS DESIGN AWARD 2013公式HP